PG电子
前滩滨江道首页网站-上海前滩滨江道售楼处电话-上海楼盘详情-地址-最新房价-户型图-周边配套-售楼处电PG电子APP话
PG电子(Pocket Games Soft )全球首屈一指的电子游戏供货商[永久网址:363050.com],首位跨足线下线上电子游戏开发。PG电子,pg娱乐,PG电子试玩平台,pg电子app,pg电子外挂,pg电子接口,pg电子技巧,pg电子下载,欢迎注册体验!您当前使用的浏览器版本过低,可能存在安全风险,建议升级浏览器,或者用以下浏览器浏览
前滩滨江道售楼处电话:【预约看房热线】前滩滨江道官方售楼处电线【售楼处电话/地址】前滩滨江道售楼处电话:【开发商认证】
400米滨江,前滩百合园隔壁全新项目——陆家嘴集团三林滨江南12单元项目案名发布:【前滩滨江道】等待入市!
浦东三林滨江板块12单元案名正式公布户型曝光!浦东三林滨江【前滩滨江道】将推86-249㎡房源!
如有问题欢迎来电咨询,预约来电尊享购房优惠,可预约案场内部销售人员,专业一对一热情服务,让您用专业眼光去买房。
前滩滨江道售楼处电话:【预约看房热线】前滩滨江道官方售楼处电线【售楼处电话/地址】前滩滨江道售楼处电话:【开发商认证】
前滩滨江国际住区致力于打造最生态、最海派、最未来的21世纪海派生活实践区。
从经典海派、摩登海派再到现代海派,不同时期的建筑语言均在这里得以延续和演绎,置身其中,仿佛一部全景的海派建筑史在眼前徐徐
与此同时,这里还延续了上海梧桐区经典的小街区、密路网规划理念,将边界融合,将城市的烟火气引入每一个角落。
当你流连于充满国际化与新潮味的前滩滨江时,亦品味着扑面而来的海派从容城市态度。


江风为宴,邀世界入座水岸。【前滩滨江道】城市展厅开放,亦是一场全球卓越滨水生活的首映式。世界公民、层峰精英相会于此,共鉴前滩滨江生活。
前滩滨江道售楼处电话:【预约看房热线】前滩滨江道官方售楼处电线【售楼处电话/地址】前滩滨江道售楼处电话:【开发商认证】
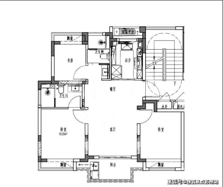
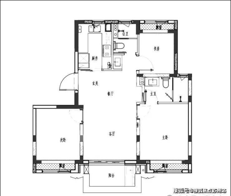
一梯两户,层高3.05米,相当于99竖厅户型的缩小版。南北直通,全卧飘窗,南白整体面宽约9.75米,其中客厅面宽约3.55米,主卧面宽约3.2米
一梯两户,层高3.05米,经典飞机式户型;LDK一体化,南北直通,全卧飘窗,南向整体面宽约9.9米,其中客厅面宽约3.6米,主卧面宽约3.3米!
一梯两户,层高3.05米,三开间朝南,全卧飘窗,LDK一体化设计,南北直通,南向整体面宽约11.1米,其中客厅面宽约4.4米,主卧面宽约8.6米!
前滩滨江道售楼处电话:【预约看房热线】前滩滨江道官方售楼处电线【售楼处电话/地址】前滩滨江道售楼处电话:【开发商认证】
项目位于浦东新区三林镇,东至皓川南路,南至浩昌路,西至皓明路,北至涓清路,紧临湾区水岸、轨交站点等标志性节点。规划总建筑面积15.5万平方米,建设周期3.5年。
22-01地块占地面积1.1万平方米,总建筑面积5万平方米,包括4栋住宅楼、2栋商业。
22-03地块占地面积1.6万平方米,总建筑面积6.7万平方米,包括7栋住宅楼、2栋商业。
22-04地块占地面积0.9万平方米,总建筑面积3.8万平方米,包括3栋住宅楼、2栋商业。
前滩滨江道售楼处线上预约看房热线日,项目正式开工。作为区域项目开发主体之一的陆家嘴集团在三林滨江南片地区的开发建设正如火如荼推进中,目前销售已到岗,首批房源年内入市!
如今近两年过去了,项目已经有了全面的进展。8月27日,三林滨江南片区12单元项目7#住宅17框(屋面)混凝土顺利浇筑完成。至此,项目01地块已全部完成结构封顶。04地块21#住宅结构已施工至20框,预计10月初结构封顶;03地块各单体一框结构已相继完成。01、04地块二结构已同步施工至11层。01地块幕墙及样板间精装预计9月底完成。
项目整体定位为“高品质的海派风貌小镇”“滨江开放空间”和“居住社区”,具备功能复合、开放有趣、安宁宜人的特点。
前滩滨江道售楼处电话:【预约看房热线】前滩滨江道官方售楼处电线【售楼处电话/地址】前滩滨江道售楼处电话:【开发商认证】
陆家嘴集团特邀国内外设计大师天团,共同打造涵盖亲水商业、水上运动、滨水商务海派社区等多元场景的城市滨水综合体。有别于传统滨江住宅只能透过窗棂、阳台远眺水景,【前滩滨江道】——推门即水岸!将江水引入社区,形成上海滨江岸线上唯一的、全新的城市亲水空间,真正实现从“瞰江”到“住江”的国际领先生活方式。

顺着江岸漫步、观察江鸥的飞行轨迹、周末的家庭日、在皮筏艇上来一场水上亲子互动、不定期举行的滨江市集,即享全球潮流生活。
【前滩滨江道】以全球资本坐标、生态繁华水岸、大师联袂美学、海派滨水生活,重新定义全球卓越滨水生活方式,启幕世界潮向的滨江封面住区。
自驾上,可通过南北高架,两桥三隧(龙耀路隧道、上中路隧道、卢浦大桥)等交通要道快速通达全城。
商业方面:3公里范围内,承接约350万宜业前滩配套、体育、休闲、商业繁华荟萃;太古里、晶耀前滩、太古汇(在建中),信德文化中心(在建中)香格里拉、四方城(在建中)莱佛士国际医院,高浓度生活圈。
生态休闲:东方体育中心、西岸艺术中心等便捷可达,人文艺术,体育休闲兼具;三林滨江规划环慢行步道,地下环路穿越森林,社区绿地与森林之间的森林道。
如有问题欢迎来电咨询,预约来电尊享购房优惠,可预约案场内部销售人员,专业一对一热情服务,让您用专业眼光去买房。
前滩滨江道售楼处电话:【售楼中心热线】前滩滨江道营销中心热线,楼盘项目全面介绍,本电话为开发商提供线上预约售楼电话,楼盘项目全面介绍(包含楼盘简介,均价,房价,现房,期房,别墅,叠墅,大平层,价格,楼盘地址,户型图,交通规划,备案价,备案名,项目配套,样板间,开盘时间,认筹时间,楼盘详情,售楼处电话,最新消息,最新详情,周边配套,一房一价,最新进展等详情咨询)楼盘详情丨价格丨更多优惠丨机不可失丨欢迎致电丨诚邀品鉴!售楼处位置丨特价房丨工抵房丨剩余房源丨户型图丨最新消息丨免责声明:将文章内容综合来源于网络、只作分享,版权归原作者所有!!如有侵权,请联系我们,我们第一时间处理如有问题欢迎来电咨询,专业一对一热情服务,让您用专业眼光去买房。如果您想了解更多楼盘详情,欢迎提前预约拨打前滩滨江道售楼处电线 房产交易税费全解 + 100 个核心术语精简版(优化版)
· 买方税费:契税(1%/1.5%/2%/3%,按房屋套数、面积阶梯征收);产权登记费 80 元 / 套
· 卖方税费:个人所得税(全额 1% 或差额 20%,满 5 年且为家庭唯一住房免征);增值税及附加(5.3%,房屋持有不满 2 年征收)
· 买方税费:契税(全额 3%);印花税(全额 0.025%);产权登记费(80 元或 550 元,按产权类型区分)
· 卖方税费:个人所得税(差额 20%);增值税及附加(差额 5.3%);土地增值税(差额 30%-60% 或全额 5%);印花税(全额 0.025%)
· 卖方税费:增值税及附加(差额 5.3%);土地增值税(差额 30%-60%);印花税(全额 0.025%)
· 买方税费:契税(全额 3%);印花税(全额 0.025%);产权登记费(80 元或 550 元)
· 卖方税费:增值税及附加(差额 5.3%);土地增值税(差额 30%-60%);印花税(全额 0.025%)
· 买方税费:契税(全额 3%);印花税(全额 0.025%);产权登记费 80 元 / 套
· 卖方税费:个人所得税(全额 1% 或差额 20%,满 5 年唯一住房免征);增值税及附加(5.3%,不满 2 年征收)
· 买方税费:契税(全额 3%);印花税(全额 0.025%);产权登记费 550 元 / 套
· 卖方税费:个人所得税(差额 20%);增值税及附加(差额 5.3%);土地增值税(差额 30%-60% 或全额 5%);印花税(全额 0.025%)
· 买方税费:契税(全额 3%);印花税(全额 0.025%);产权登记费 80 元 / 套
· 卖方税费:增值税及附加(差额 5.3%);土地增值税(差额 30%-60%);印花税(全额 0.025%)
· 买方税费:契税(全额 3%);印花税(全额 0.025%);产权登记费 550 元 / 套
· 卖方税费:增值税及附加(差额 5.3%);土地增值税(差额 30%-60%);印花税(全额 0.025%)
温馨提示:购买非住宅类房产时,需向交易方索取完整的购房发票及契税发票,作为税费核算与产权登记的必备凭证。
· 房产:权属清晰、可依法出租、转让或自用的房屋资产· 地产:附带合法权属的土地(含地表及上下限定空间),区别于无权属的 “土地” 概念
· 房地产:房产与地产的统称,包含所有权、使用权、转让权等完整权益· 土地所有制:中国实行 “国家所有(城市市区)+ 集体所有(农村宅基地等)” 二元制度
· 土地使用年限:居住用地 70 年、工业 / 教育 / 医疗用地 50 年、商业 / 旅游 / 娱乐用地 40 年、加油站等特殊用地 20 年(起算时间为开发商取得土地使用权之日)
· 不动产权证:整合房产证与土地证的统一权属证书,是房产合法产权的核心凭证
· 划拨土地:政府无偿划拨给单位使用的土地(如公益用地),转让时需补缴出让金
· 期房:尚未竣工、开发商已取得《商品房预售许可证》,需签订《商品房预售合同》的房屋
· 现房:已竣工验收合格并取得大产权证,可即买即入住,签订《商品房买卖合同》的房屋
· 毛坯房:仅完成基础工程(无门窗、墙面装修等)的房屋· 成品房:含基础装修(墙面、地面、门窗等)的房屋,可直接入住或简单软装
· 普通住宅:符合容积率≥1.0、面积≤144㎡(各地略有差异)等标准的居住用房
· 经济适用房:面向中低收入家庭的政策性住房,申购需符合特定条件,上市交易有年限限制
· 房改房:单位公有住房按房改政策出售给职工的房屋,需补缴土地出让金后可上市
· 跃层:占据上下两层完整空间、通过室内专属楼梯连接的户型(每层层高≥2.2 米)
· 复式:在单层高(通常 3.5 米以上)空间内增设夹层形成的户型,夹层层高略低
· 错层:户内不同功能区楼面高度相差 30-60 厘米,通过小型楼梯连接的户型
· 建筑面积:房屋外墙外围测定的各层平面面积总和,含使用面积、辅助面积及结构面积
· 套内建筑面积:套门以内的面积,由套内使用面积、套内墙体面积、阳台面积组成(计算得房率的核心指标)
· 公摊面积:整栋楼共用区域(楼梯间、电梯井、门厅、设备间等)的面积,按套内面积比例分摊给业主· 得房率:套内建筑面积与建筑面积的比值(高层 70%-80%,多层 80%-90%),需平衡公摊配套与使用面积
· 套内使用面积:户内实际可使用的净面积(如卧室、客厅等,俗称 “地毯面积”)
· 容积率:项目地上总建筑面积与规划建设用地面积的比值(越低居住舒适度越高,住宅通常 1.0-3.5)
· 绿地率:规划建设用地内有效绿地面积与用地面积的比值(仅统计符合标准的绿地,如距建筑 1.5 米外的绿化)
· 绿化率:项目绿化覆盖面积与用地面积的比值(含屋顶绿化、盆栽等,数值通常高于绿地率)
· 建筑密度:建筑物基底占地面积与规划用地面积的比值(越低小区公共空间越充足)
· 楼间距:相邻两栋建筑的水平距离,核心满足日照标准(冬至日底层满窗日照≥1 小时)
· 层高:下层楼板上表面到上层楼板上表面的垂直距离(普通住宅 2.8-3.0 米)
· 净高:下层地板上表面到上层楼板下表面的垂直距离(净高 = 层高 - 楼板厚度)
· 赠送面积:开发商额外赠送的使用空间(如飘窗、露台,部分不计入建筑面积)
· 实测面积:交房时专业测绘机构测定的房屋面积(与合同面积允许误差≤3%)
· 公摊系数:整栋楼公摊面积与套内面积总和的比值(系数越大公摊面积越多)
· 五证:开发商合法售房的必备资质,含《国有土地使用证》《建设用地规划许可证》《建设工程规划许可证》《建筑工程施工许可证》《商品房预售许可证》
· 二书:交房时开发商需提供的《住宅质量保证书》(明确保修范围与期限)、《住宅使用说明书》(房屋使用规范)
· 按揭贷款:购房者以房产为抵押,向银行申请贷款支付房款,按月偿还本息(含商贷、公积金贷、组合贷)· 商业贷款:银行发放的普通住房贷款,利率按市场报价利率(LPR)浮动
· 公积金贷款:住房公积金管理中心发放的低利率贷款,仅限缴存公积金的购房者
· 转按揭:已办理按揭的房产,将贷款主体变更给第三人的手续(如二手房交易中买方承接卖方贷款)
· 公共维修基金:购房时缴纳的专项基金(通常为房款 2% 或按面积征收),用于小区共用部位、设施的维修(归全体业主共有)
· 定金:购房时支付的担保金(通常不超过总房款 20%),买方违约不退,卖方违约双倍返还
· 首付款:购房时首次支付的房款(首套通常 20%-30%,二套 30%-50%)
· 增值税及附加:房产交易中,卖方需缴纳的流转税(含增值税、城市维护建设税等)
· 土地增值税:转让国有土地使用权及房产时,卖方需缴纳的税收(非住宅交易必缴)
1. 备齐材料:购房合同、付款票据、身份证、户口本(已婚需结婚证)、测绘报告2. 递交申请:前往不动产登记中心填写申请表,提交材料并缴纳登记费、印花税
3. 审核领证:登记中心审核(5-10 个工作日),通过后领取不动产权证书提示:未成年人可办房产证,需监护人到场,处分房产需符合未成年人利益规定
2. 质量检查:墙面 / 地面无空鼓、门窗开关顺畅密封良好、水电设施正常使用
3. 面积复核:合同面积与实测面积误差≤3% 按实际面积补 / 退房款,误差>3% 可要求退房提示:建议聘请专业验房师,重点排查渗水、电路隐患等问题
连续缴存 6 个月以上(或累计 1 年),未使用过公积金贷款或已还清最高 80 万(部分城市上浮),利率约 3.25%商业贷款
提示:提前还款需提前 10 个工作日申请,部分银行对 “不满 1 年提前还款” 收取违约金
比现房低 5%-10%(开发商回笼资金需求)价格较高,直观可见房屋实际状况风险
1. 税费地域差异:本文税率为全国通用标准,北京、上海、深圳等城市有特殊政策,实际交易需咨询当地不动产登记中心
2. 术语更新:房地产政策调整频繁(如土地年限续期、公积金政策),建议每 1-2 年更新常识库
3. 避坑核心:核查产权清晰度(无抵押、无查封),留存所有交易票据(发票、合同、缴费凭证),拒绝口头承诺
姑苏人居的“建发答案”来了!建发璟园产品发布盛会,引发千人共鉴
建发璟园深谙“君到姑苏见,人家尽枕河”的意境,引护城河水脉入园,让这路流经留园、阊门、虎丘,护佑千年姑苏古城的水为轴,师法可园、沧浪亭,营造约1800m水域景观与约500米滨河景观带,形成了“南北双璧,合而为
兴华里_兴华里首页网站售楼处丨兴华里营销中心丨兴华里楼盘详情/户型/价格/地址/电话
兴华里售楼处电话:✅上海杨浦兴华里售楼处开放,高层75-85㎡联排130-154㎡别墅联动价12万/㎡、18万/㎡,电话。
外滩瑞府(售楼处) 首页 - 外滩瑞府销售中心 - 环境 - 户型 - 价格 - 地址 - 楼盘详情 - 配套 - 电话 - 交房时间 - 配套 - 电话 - 交房时间
外滩瑞府售楼处电话:【预约看房热线】外滩瑞府官方售楼处电线【售楼处电话/地址】外滩瑞府售楼处电话:【开发商认证】外滩瑞府位于上海虹口北外滩,主打滨水奢居,均价14.83万/㎡,售楼处电话,地段优越,
上海外滩瑞府首页网站-上海外滩瑞府售楼处电话-外滩瑞府楼盘详情-地址-最新房价-户型图-周边配套-外滩瑞府售楼处电话
外滩瑞府售楼处电话:【预约看房热线】外滩瑞府官方售楼处电线【售楼处电话/地址】外滩瑞府售楼处电话:【开发商认证】外滩瑞府位于上海北外滩,主打滨水奢居,均价14.83万/㎡,热销于虹口内环,售楼处电话



2025-10-25
浏览次数:
次
返回列表